385 mq
3
2
Garage/Posto Auto
Giardino privato
Autonomo
In attesa di certificazione

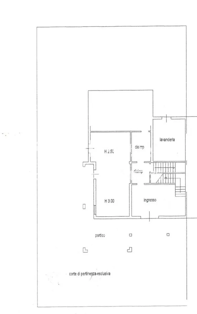
Descrizione

Rif. VE1866-1 - VE1866 -Nostra Esclusiva. In tranquillo e silenzioso quartiere residenziale di Casinalbo (in una strada chiusa al traffico), proponiamo in vendita una villa abbinata risalente agli anni '70, che si sviluppa su una superficie complessiva di 385 mq commerciali, circondata da un ampio giardino privato di 355 mq con portico. Dettagli principali dell'immobile: Giardino su tre lati con ingresso pedonale e cancello carrabile automatico Ampio portico esterno Garage, cantina e taverna al piano terra Mansarda abitabile, soffitta e riscaldamento autonomo con aria condizionata Distribuzione interna: * Piano terra: cortile privato con ingresso, spaziosa taverna, lavanderia, garage, e accesso alla cantina nel piano seminterrato * Primo piano: soggiorno luminoso, sala da pranzo con cucinotto, due camere matrimoniali, una camera singola e * bagno * Secondo piano: soffitta totalmente abitabile e ulteriore solaio/deposito L'immobile offre la possibilità di una ristrutturazione per renderlo bifamiliare, creando un appartamento indipendente al piano terra. CLASSE ENERGETICA: In fase di valutazione

Planimetrie

Altre caratteristiche

Stato Immobile
In buone condizioni
Vani
11
Tipo di cucina
Cucinotto
Terrazze / Logge
1
Posto auto
Nessuno
Metratura giardino
350
Piani totali della palazzina
2
Condizionamento
Installato
Cantina
Ripostiglio
Lavanderia
Tipologia Immobile
Villetta a schiera
Categoria Immobile
Case e Appartamenti
Contatta Agenzia
Proposto da: EDIL MOREALI

Quotazioni immobiliari per Casinalbo - Formigine