199 mq
3
2
Garage/Posto Auto
Giardino privato
Autonomo
A4

Descrizione

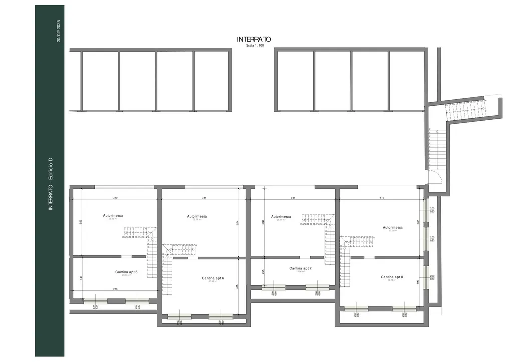
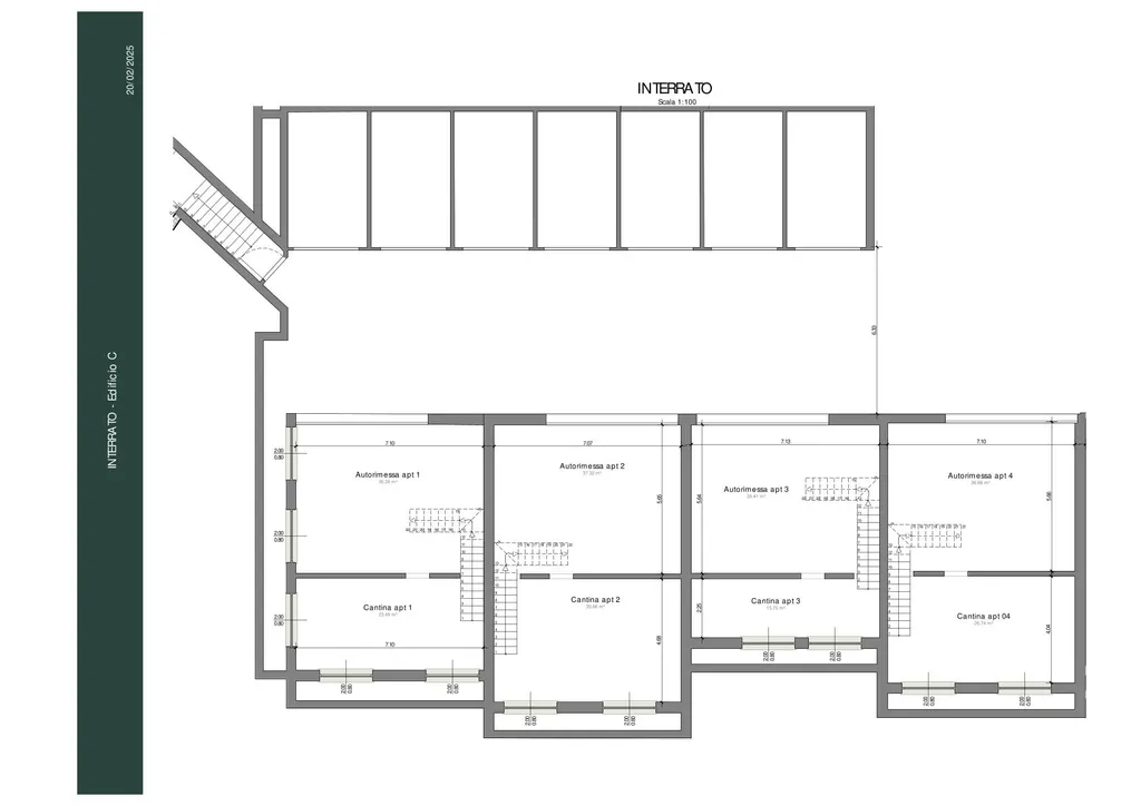
Rif. CAP730 - BAGGIOVARA: 8 VILLE A SCHIERA DI NUOVA COSTRUZIONE in due fabbricati, ciascuna composta da Piano Interrato con garage doppi e cantine annesse con accesso diretto dall'unità  immobiliare, Piano Terra con ingresso in giardino privato ampia zona soggiorno, studio e bagno, Piano Primo 3 camere e due bagni. Finiture signorili personalizzabili, sistema a pompa di calore elettrica per il riscaldamento e la produzione di acqua calda sanitaria, sistemi di accumulo inerziale e acqua calda sanitaria per l'ottimizzazione della produzione di calore gratuita da fonte rinnovabile grazie ai pannelli fotovoltaici e solari termici installati in copertura; impianto di ventilazione meccanica controllata con recuperatore di calore ad alta efficienza. CLASSE A4 - NZEB (Near Zero Energy Building). Consegna primavera 2027. Da mq 199 a mq 225, prezzi a partire da euro 517514

Altre caratteristiche

Stato Immobile
Nuovo
Vani
5
Tipo di cucina
Aperta
Posto auto
Riservato
Cantina
Tipologia Immobile
Villetta a schiera
Categoria Immobile
Case e Appartamenti
Contatta Agenzia
Proposto da: CAPITAL IMMOBILIARE

Quotazioni immobiliari per Baggiovara - Modena