870 mq
7
2
Garage/Posto Auto
Giardino privato
Autonomo
F

Descrizione

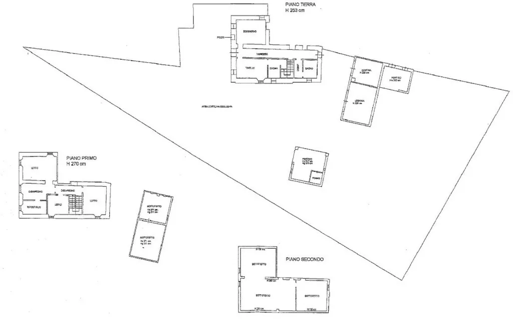
Rif. RV3302 - Zona Castello di Canossa - Tenuta in sasso (Rif.RV3302) Splendida tenuta in sasso sulle prime colline reggiane, con vista panoramica, nei pressi del Castello di Canossa. L'immobile, negli anni è stato conservato con cura e ristrutturato in varie fasi dai primi anni '70 fino al 2005 con interventi mirati a mantenere le caratteristiche dell'epoca di costruzione e del fabbricato. Attualmente nella casa singola sono presenti 2 appartamenti indipendenti circondati dalle verdi colline reggiane. Nella proprietà è poi presente un secondo fabbricato utilizzato come deposito attrezzi e garage. Porticato esterno con forno a legna dove poter fare bellissime cene o colazioni all'alba. Rifatto pavimenti, impianto elettrico, marmi levigati,parquet, impianto di irrigazione, 2 pozzi con raccolta acque,fossa settica , doppi vetri,GPL,cancello automatico, forno esterno antico con portico. All'interno della proprietà si trova una stalla con fienile e portico con possibilità di costruire ulteriore unità immobiliare. Ideale per un grande nucleo famigliare che desidera vivere nella tranquillità ma comunque a 15 minuti da tutti i principali servizi o per chi desidera realizzare un'attività di AGRITURISMO e B&B Possibilità a parte di ulteriori 11 ettari.

Altre caratteristiche

Stato Immobile
In buone condizioni
Vani
9
Tipo di cucina
Abitabile
Balconi
1
Terrazze / Logge
1
Metratura giardino
2000
Piano
Su più livelli
Piani totali della palazzina
2
Tipologia Immobile
Villa singola
Categoria Immobile
Case e Appartamenti
Contatta Agenzia
Proposto da: PIAZZA AFFARI Servizi Immobiliari

Quotazioni immobiliari per Ermete Conti - San Polo d'Enza