600 mq
5
3
Garage/Posto Auto
Giardino privato
Autonomo
G

Descrizione

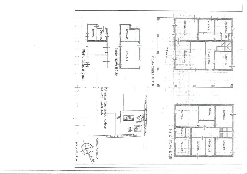
Rif. CAP713 - Tra Cognento e Cittanova: villa indipendente con ampio portico su lotto alberato di oltre mq 2000. Disposta su due livelli. PT: salone con camino, cucina abitabile, studio, bagno, lavanderia; P1: cinque camere da letto e due bagni finestrati. Termo autonomo ed impianto di climatizzazione, fotovoltaico e depurazione acqua, allarme e videosorveglianza. Due garage in corpo separato. Richiesta: 630000 Euro

Altre caratteristiche

Stato Immobile
In buone condizioni
Tipo di cucina
Abitabile
Posto auto
Riservato
Metratura giardino
2250
Piano
Terra
Cantina
Tipologia Immobile
Villa singola
Categoria Immobile
Case e Appartamenti
Contatta Agenzia
Proposto da: CAPITAL IMMOBILIARE

Quotazioni immobiliari per Cittanova - Modena