1

Descrizione

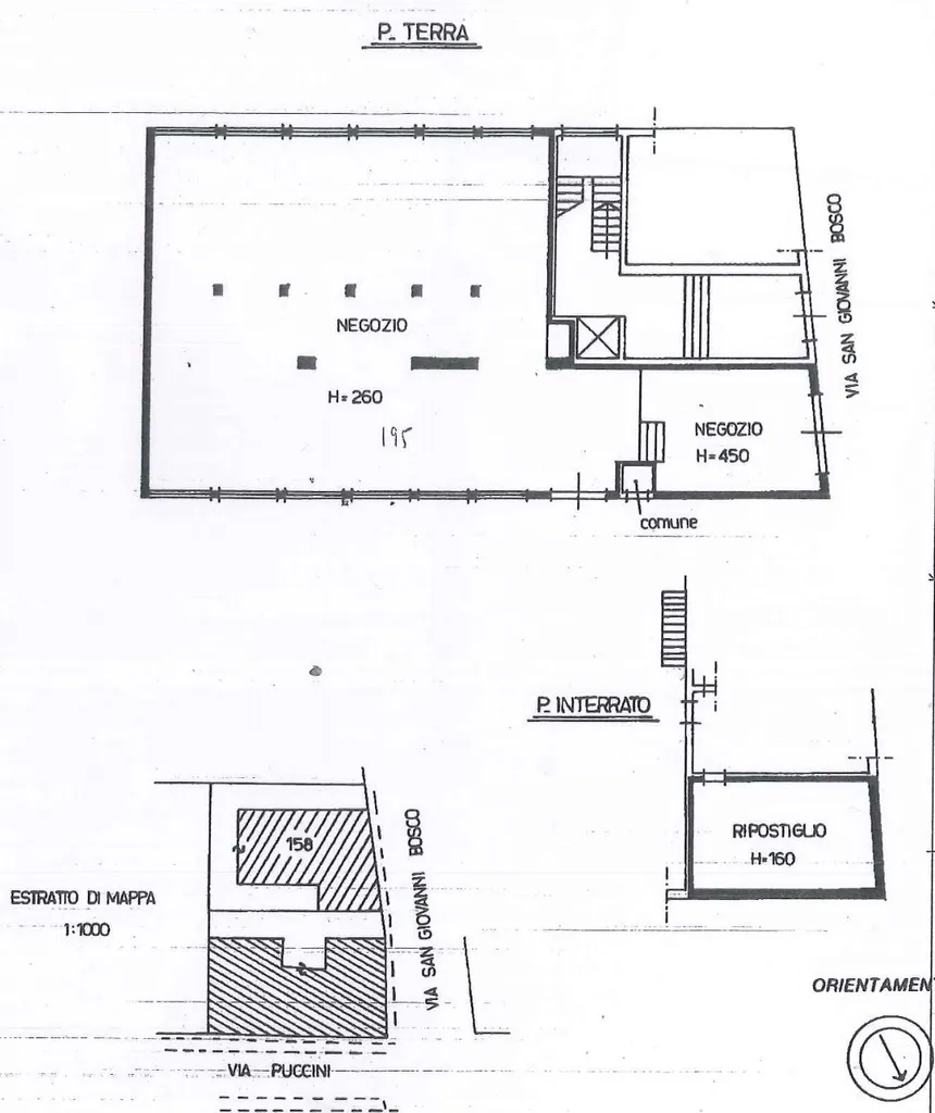
Rif. CAP481 - MUSICISTI/ VIA S. GIOVANNI BOSCO. UFFICIO di oltre 200 mq con ingresso/vetrina fronte strada attualmente open space ma con possibilità  di divisioni interne personalizzabili fino a 10/15 di spazi uso ufficio, servizi igienici (planimetria a titolo esemplificativo), magazzino mq 40 al piano interrato, area privata adiacente di mq 50. Disponibile. Disponibilità  di altro locale adiacente di mq 40 ad uso negozio con ingresso/vetrina fronte strada. euro 190000

Altre caratteristiche

Categoria Immobile
Commerciali e Attività
Tipologia Immobile
Ufficio / Studio
Metri Quadri
200 mq
Classe energetica
In attesa di certificazione
Posto auto
Presente
Riscaldamento
Centralizzato
Piano
Terra
Bagni
1
Stato Immobile
In buone condizioni
Contatta Agenzia
Proposto da: CAPITAL IMMOBILIARE

Quotazioni immobiliari per Musicisti - Modena