100 mq
Arredato
Individuali
Entrambi
Lgbt Friendly

Descrizione

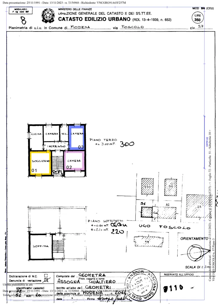
Disponibilitá immediata in appartamento appena ristrutturato di una camera in affitto, luminosa e accogliente, arredata a nuovo con armadio spazioso, letto matrimoniale contenitore e scrivania per studiare. Cucina attrezzata, stanza dedicata per stendere e stirare, bagno con doccia e lavatrice; Cantina per bici o moto + posti auto esterni sempre disponibili. 3 camere x 3 coinquilini in totale, ognuno con la propria stanza matrimoniale. Classe energetica C Costi: 390 euro al mese + 20 euro di spese condominiali, Utenze gestite tra inquilini in autonomia di ca. 50 euro al mese. 3 mesi di caparra. Ricerco: Persona molto rispettosa degli ambienti comuni, tra i 20-40 anni, che studia o lavora, permanenza di almeno un anno. Convivenza con 2 ragazze lavoratrici molto tranquille che giá vivono in casa. (Camera disponibile n.03 come da planimetria allegata)

Planimetrie

Altre caratteristiche

Camera disponibile per
Entrambi
Numero posti letto
1
Lavatrice
Cantina
Tipo di cucina
Abitabile
Lgbt Friendly
Covivenza con
Misto
Balconi
1
Metri Quadri
100 mq
Arredato
Spese condominiali / utenze
Individuali
Piano
3
Camere da letto
3
Bagni
1
Vani
4
Garage/Posto Auto
Ultimo piano
Contatta Inserzionista
Rif. Immobile:
Proposto da: Giorgia V
Tel: