1

Descrizione

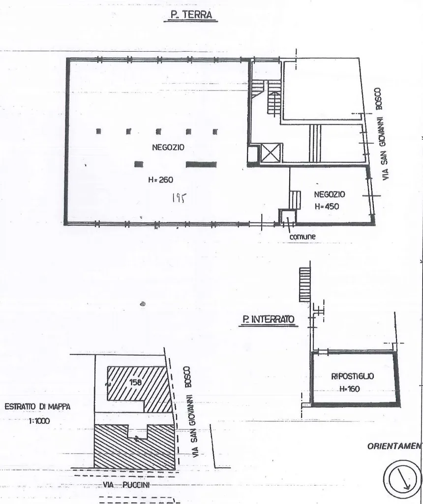
Rif. CAP341 - MUSICISTI/ VIA S. GIOVANNI BOSCO. NEGOZIO di oltre 200 mq con ingresso/vetrina fronte strada attualmente open space ma con possibilità  di divisioni interne personalizzabili, servizi igienici, magazzino mq 40 al piano interrato, area privata adiacente di mq 50. Disponibile. euro 1650 mensili Disponibilità  di altro locale adiacente di mq 40 ad uso negozio con ingresso/vetrina fronte strada.

Altre caratteristiche

Categoria Immobile
Commerciali e Attività
Tipologia Immobile
Negozio / Locale Commerciale
Metri Quadri
200 mq
Classe energetica
F
Posto auto
Presente
Riscaldamento
Centralizzato
Piano
Terra
Bagni
1
Stato Immobile
In buone condizioni
Contatta Agenzia
Proposto da: CAPITAL IMMOBILIARE