56 mq
1
1
Garage/Posto Auto
Giardino privato
Arredato
Autonomo
In attesa di certificazione

Descrizione

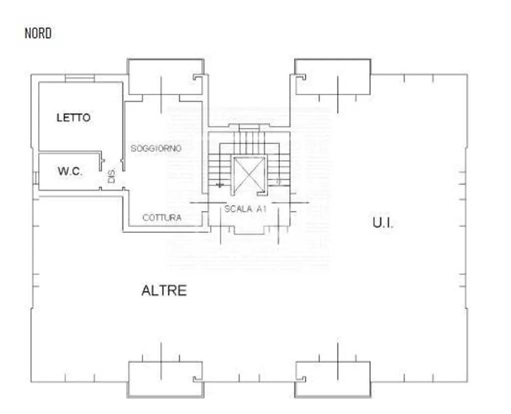
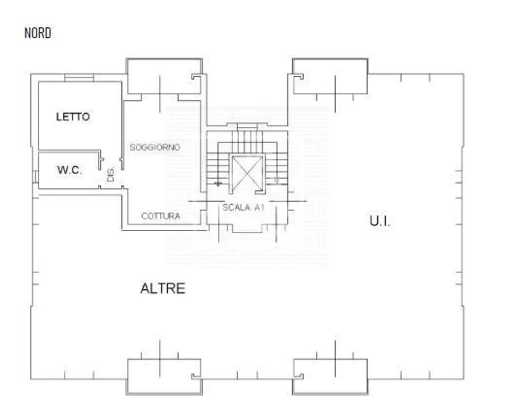
Rif. RV8015 - Foscato – Mini appartamento all’ultimo piano (Rif.RV8015) Mini appartamento di circa 56 mq posto al secondo ed ultimo piano di una palazzina edificata nel 2006, composta da sole 12 unità e dotata di buone finiture. L'abitazione si presenta in ottime condizioni ed è quindi abitabile da subito. Internamente l'immobile è composto da ingresso su ampio soggiorno con angolo cottura reso particolarmente luminoso grazie all'affaccio sulla loggia coperta, piccolo disimpegno che conduce alla zona notte, camera matrimoniale e bagno finestrato completo di box doccia. La proprietà include anche una cantina ed un garage di 22 mq siti al piano interrato, accessibile da comoda rampa e servito da ascensore. L'immobile è dotato di teleriscaldamento autonomo e si distingue per le basse spese condominiali. Alcune finiture: infissi di legno con doppi vetri, videocitofono, porta blindata e porte interne di legno. Nell'arredamento invece sono inclusi: cucina completa, mobile bagno e armadio della camera. Posizionato in contesto signorile e ben curato con spazi verdi ed accesso da strada pedonale. Libero a breve. Classe energetica in corso di elaborazione. Per informazioni Sede Via Cadoppi 8/B tel 0522512431 - mail residenziale1@piazzaffarisrl.it

Video

Virtual Tour

Altre caratteristiche

Stato Immobile
In buone condizioni
Anno costruzione
2006
Vani
2
Tipo di cucina
Aperta
Balconi
1
Terrazze / Logge
1
Piano
2
Piani totali della palazzina
2
Ultimo piano
Spese condominiali
€ 95 €/mese
Ascensore
Tipologia Immobile
Appartamento
Categoria Immobile
Case e Appartamenti
Contatta Agenzia
Proposto da: PIAZZA AFFARI Servizi Immobiliari

Quotazioni immobiliari per Via Thomas Mann 1 - Reggio Emilia