227 mq
3
3
Garage/Posto Auto
Giardino privato
A pavimento
A4

Descrizione

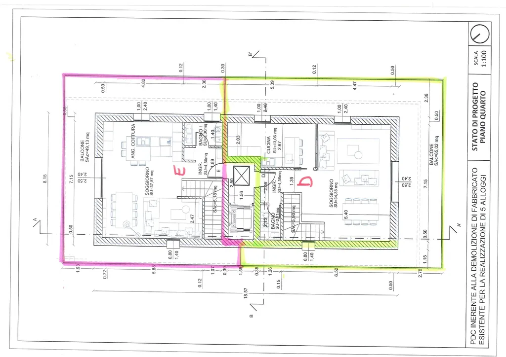
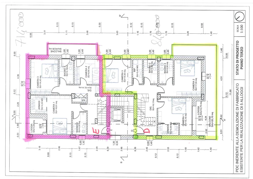
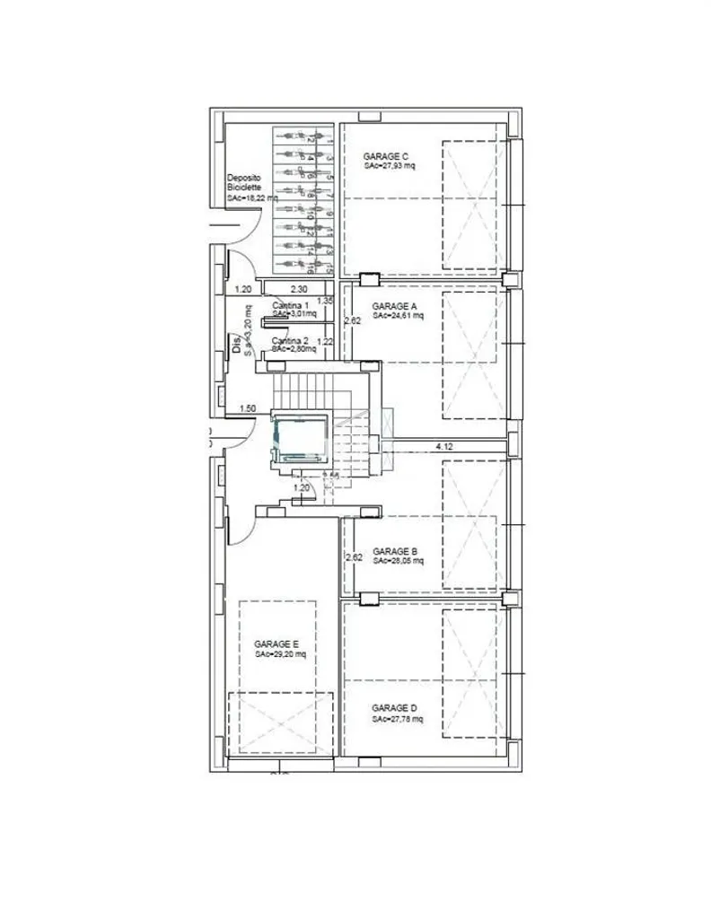
Rif. CAP220/4 - Nostra esclusiva. Via Cellini, zona Buon Pastore, in palazzina di nuova costruzione (Classe Energetica "A4") di sole 5 unità  vendesi app.to "D" ubicato al piano terzo-quarto con ascensore di 227 mq. Caratteristica peculiare dellintervento è ladozione di avanzate tecnologie impiantistiche davanguardia volte al massimo contenimento del consumo energetico nel pieno rispetto dellambiente, infatti tutte le unità  immobiliari saranno edificate in classe A4 (secondo la delibera della Regione Emilia Romagna dgr. 20 luglio 2015, n. 967). Il capitolato prevede finiture di pregio tutte personalizzabili, pavimenti in ceramica grandi formati e parquet, rubinetterie e sanitari di design, riscaldamento autonomo a pavimento in pompa di calore, aria condizionata, tapparelle motorizzate, serramenti in alluminio, impianto per il ricircolo dell'aria meccanizzato, pannelli fotovoltaici, impianto di domotica Bticino My-Home, predisposizione per antifurto, zanzariere e addolcitore acque. App.to così disposto: ingresso, soggiorno con sbocco su terrazzo semi coperto, cucina abitabile e un bagno.Al piano superiore dis.notte, tre camere da letto matrimoniali di cui una con terrazzo e due bagni finestrati.Possibilità  di usufruire delle detrazioni derivanti dal Sisma Bonus acquisti.Possibilità  di personalizzazione degli spazi e delle finiture interne.Possibilità  di scelta tra diversi garage, cantine e posti auto a parte nel prezzo.Prezzo: euro 840.000 Consegna dicembre 2026.

Altre caratteristiche

Stato Immobile
In costruzione
Vani
6
Tipo di cucina
Abitabile
Balconi
1
Terrazze / Logge
1
Posto auto
Riservato
Piano
3
Ascensore
Tipologia Immobile
Appartamento
Categoria Immobile
Case e Appartamenti
Contatta Agenzia
Proposto da: CAPITAL IMMOBILIARE

Quotazioni immobiliari per Buon Pastore - Modena