115 mq
3
2
Centralizzato - Contacalorie
A4

Descrizione

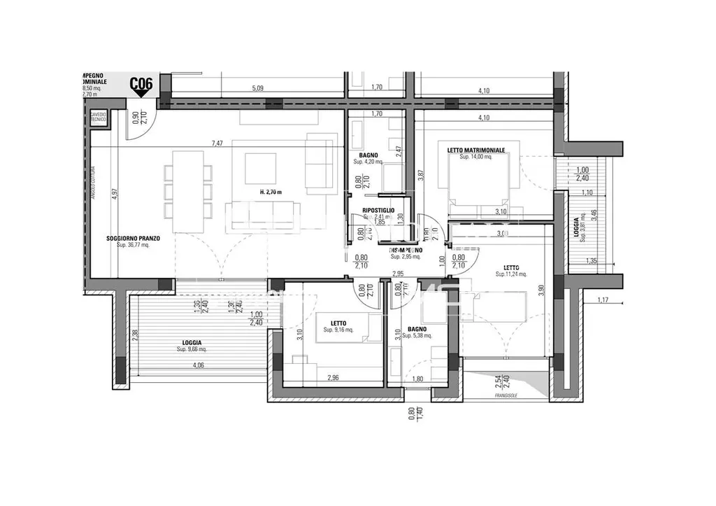
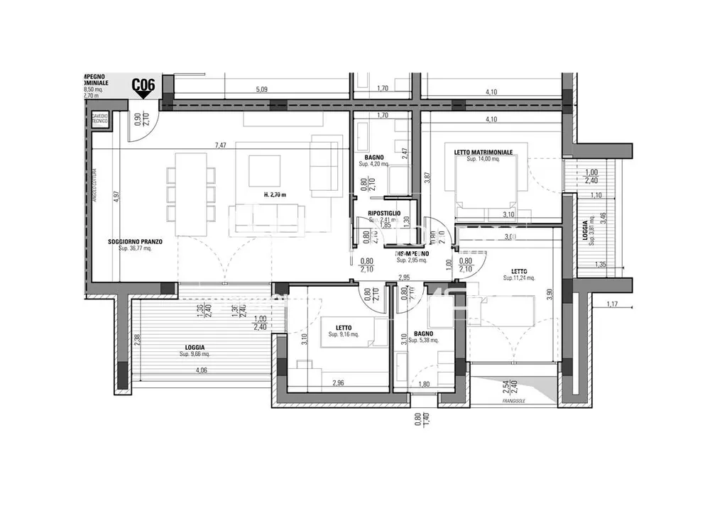
Rif. MO876_C6 - MO876_C6. Nostra esclusiva. Zona Morane - Via Felicia Bartolotta, all'interno del nuovo comparto Estense, vendesi appartamento "C6" al piano primo di 115 mq. con due logge coperte. Caratteristica peculiare dellintervento è ladozione di avanzate tecnologie impiantistiche davanguardia volte al massimo contenimento del consumo energetico nel pieno rispetto dellambiente, infatti tutte le unità immobiliari saranno edificate in classe A4 (secondo la delibera della Regione Emilia Romagna dgr. 20 luglio 2015, n. 967). Il capitolato prevede finiture di pregio tutte personalizzabili, pavimenti in ceramica grandi formati, rubinetterie e sanitari di design, riscaldamento a pavimento, tapparelle motorizzate in alluminio coibentato, zanzariere, impianto di ricambio automatico dell'aria, pannelli fotovoltaici, predisposizione per impianto di climatizzazione e allarme antintrusione. Appartamento così disposto: soggiorno/pranzo con cucina a vista, loggia, disimpegno, tre camere da letto (di cui una dotata di loggia), due bagni e ripostiglio. Possibilità di personalizzazione degli spazi e delle finiture interne. Possibilità di scelta tra diverse autorimesse e posti auto interni a parte nel prezzo. Prezzo: .352.619 Consegna dicembre 2028. Per informazioni e visite: 340-7710085 dott. Corica Giuseppe, 335-6917982 Mastrodomenico Emidio, 335-6444800 dott. Gollini Enrico, 335-7853006 geom. Zara Costantino, 335-6880908 geom. Fella Cristiano. In alternativa ulteriori info sul ns sito GRUPPOMORE.IT digitando CODICE DI RIFERIMENTO o inviaci una mail gestionecantieri-gruppomore@cataimm.it CLASSE ENERGETICA:

Planimetrie

Altre caratteristiche

Stato Immobile
In costruzione
Anno costruzione
2026
Vani
4
Tipo di cucina
Angolo Cottura
Balconi
2
Metratura totale balconi
18
Posto auto
Nessuno
Piano
1
Piani totali della palazzina
4
Condizionamento
Installato
Pannelli solari / fotovoltaico
Ascensore
Antifurto
Tipologia Immobile
Appartamento
Categoria Immobile
Case e Appartamenti
Contatta Agenzia
Proposto da: EDIL MOREALI

Quotazioni immobiliari per VIA FELICIA BARTOLOTTA - Morane - Modena