94 mq
2
1
Autonomo
A4

Descrizione

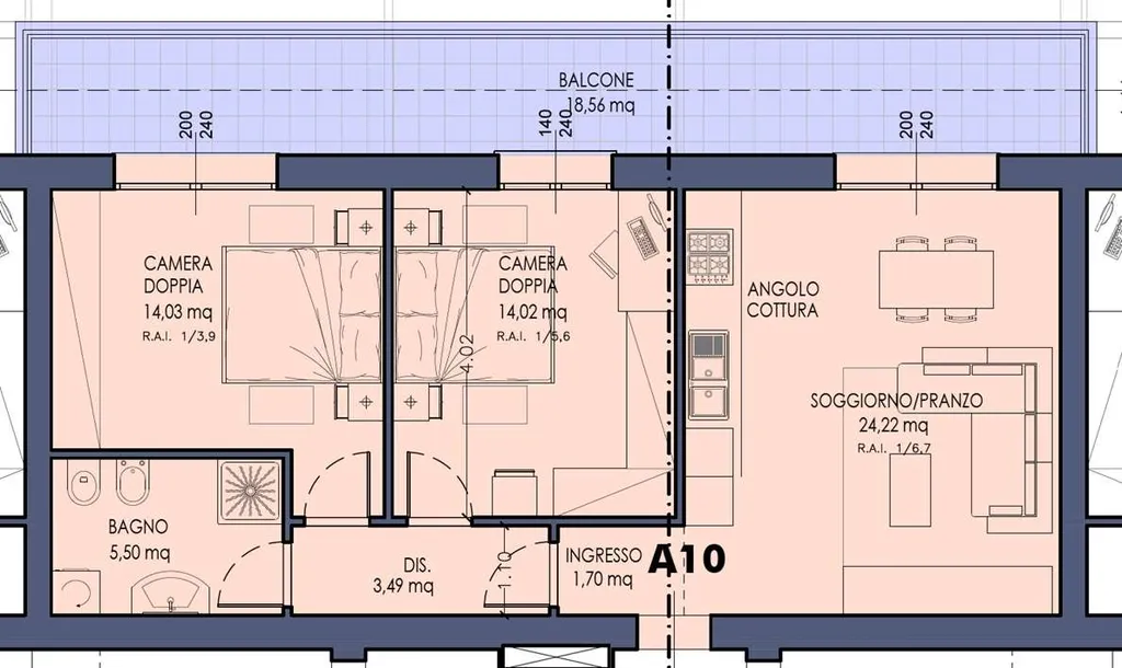
Rif. V001167 - MARANELLO NUOVA COSTRUZIONE IN CLASSE A4 In zona residenziale, a pochi passi dallo stabilimento Ferrari, prenotiamo appartamento, in classe energetica A4, Nearly Zero Energy Buildings (NZEB) progettati per garantire massimo comfort e risparmio energetico, con Ascensore. Finiture di pregio e possibilità di personalizzazione. appartamento così composto: soggiorno con AK, balcone, dispegno, 2 camere, 1 bagno, , Garage: possibilità di scegliere tra garage singolo o garage doppio. Unopportunità ideale per chi cerca una casa moderna, efficiente e dal design curato. Consegna fine 2026 Contattaci per maggiori informazioni e per prenotare la tua nuova casa! CLASSE ENERGETICA:

Altre caratteristiche

Stato Immobile
In costruzione
Vani
3
Tipo di cucina
Angolo Cottura
Balconi
1
Metratura totale balconi
21
Posto auto
Nessuno
Piano
2
Piani totali della palazzina
2
Ultimo piano
Condizionamento
Installato
Pannelli solari / fotovoltaico
Ascensore
Tipologia Immobile
Appartamento
Categoria Immobile
Case e Appartamenti
Contatta Agenzia
Proposto da: LE MURA CASTELLARANO

Quotazioni immobiliari per Maranello