140 mq
3
2
Giardino privato
Arredato
Centralizzato - Contacalorie
A1

Descrizione

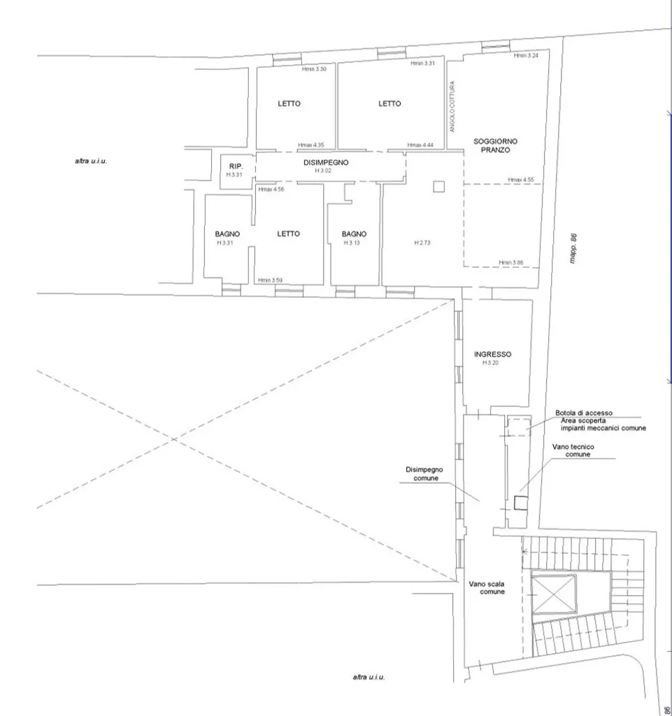
Rif. CAP036 - Centro storico: In elegante contesto di ultima ristrutturazione, appartamento posto al piano primo con ascensore, mq 140, ingresso, ampio soggiorno con cucina a vista, disimpegno notte con camera matrimoniale, due camere 3/4, 2 bagni, lavanderia. COMPLETAMENTE e FINEMENTE ARREDATA, cucina con elettrodomestici, zanzariere alle finestre, porta blindata. Riscaldamento a pavimento ed aria condizionata canalizzata. Garage doppio. SOLO ALTAMENTE REFERENZIATI. LIBERO DA AGOSTO 2026. euro 2800 mensili

Altre caratteristiche

Stato Immobile
Nuovo
Vani
5
Tipo di cucina
Aperta
Posto auto
Riservato
Piano
1
Spese condominiali
€ 2400 €/anno
Ascensore
Cantina
Tipologia Immobile
Appartamento
Categoria Immobile
Case e Appartamenti
Contatta Agenzia
Proposto da: CAPITAL IMMOBILIARE